thank you
Your email has been sent.
755 Central Ave 38,843 SF of Industrial Space Available in New Providence, NJ 07974



FEATURES
Clear Height
15’
Column Spacing
27’ x 51’
Drive In Bays
2
Exterior Dock Doors
4
Levelers
4
Standard Parking Spaces
86
ALL AVAILABLE SPACE(1)
Display Rental Rate as
- SPACE
- SIZE
- TERM
- RENTAL RATE
- SPACE USE
- CONDITION
- AVAILABLE
Note: Purchase offers considered
- Listed rate may not include certain utilities, building services and property expenses
- 1 Drive Bay
- 3 Loading Docks
- Wet System
- Includes 5,000 SF of dedicated office space
- Space is in Excellent Condition
- Natural Gas
| Space | Size | Term | Rental Rate | Space Use | Condition | Available |
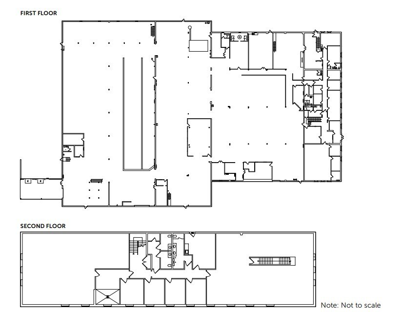
| 1st Floor | 38,843 SF | Negotiable | Upon Request Upon Request Upon Request Upon Request Upon Request Upon Request | Industrial | Partial Build-Out | January 01, 2026 |
1st Floor
| Size |
| 38,843 SF |
| Term |
| Negotiable |
| Rental Rate |
| Upon Request Upon Request Upon Request Upon Request Upon Request Upon Request |
| Space Use |
| Industrial |
| Condition |
| Partial Build-Out |
| Available |
| January 01, 2026 |
1 of 1
VIDEOS
3D TOUR
PHOTOS
STREET VIEW
STREET
MAP
1st Floor
| Size | 38,843 SF |
| Term | Negotiable |
| Rental Rate | Upon Request |
| Space Use | Industrial |
| Condition | Partial Build-Out |
| Available | January 01, 2026 |
Note: Purchase offers considered
- Listed rate may not include certain utilities, building services and property expenses
- Includes 5,000 SF of dedicated office space
- 1 Drive Bay
- Space is in Excellent Condition
- 3 Loading Docks
- Natural Gas
- Wet System
PROPERTY OVERVIEW
This property has been strategically repositioned to support a mix of technology, educational, and business uses, and plays a key role in supporting logistics and supply operations tied to the Port of NY/NJ.
WAREHOUSE FACILITY FACTS
Building Size
62,500 SF
Lot Size
4.02 AC
Year Built/Renovated
1961/2012
Construction
Steel
Sprinkler System
Wet
Water
City
Sewer
City
Heating
Gas
Gas
Natural
Power Supply
Amps: 1,800 Volts: 480
Zoning
LI
SELECT TENANTS
- FLOOR
- TENANT NAME
- INDUSTRY
- 1st
- Bio Repository Resources, LLC
- Manufacturing
- 1st
- Molecular Pharmagroup
- Retailer
- 1st
- Sproutlings Educational Childcare Center
- Health Care and Social Assistance
- 1st
- Wrist Ship Supply
- Retailer
1 of 7
VIDEOS
3D TOUR
PHOTOS
STREET VIEW
STREET
MAP
Presented by
755 Central Ave
Hmm, there seems to have been an error sending your message. Please try again.
Thanks! Your message was sent.



